Thị trường bất động sản miền Bắc đang dồn mọi sự chú ý về Dự án K-New Town Bắc Ninh – siêu phẩm quy mô 810ha được định vị là khu đô thị chuẩn Hàn đầu tiên tại Việt Nam. Nằm tại vị trí hạt nhân của quy hoạch khu đô thị Đông Nam TP Bắc Ninh, dự án không chỉ thay đổi diện mạo vùng Kinh Bắc mà còn mở ra cơ hội x2, x3 tài sản cho những nhà đầu tư nhạy bén. Thực hư tiềm năng của ‘gã khổng lồ’ này ra sao? Hãy cùng Buivanhiep.com phân tích chi tiết tọa độ vàng và dư địa tăng giá của dự án trong bài viết dưới đây.
Thông tin tổng quan siêu dự án K-New Town Bắc Ninh
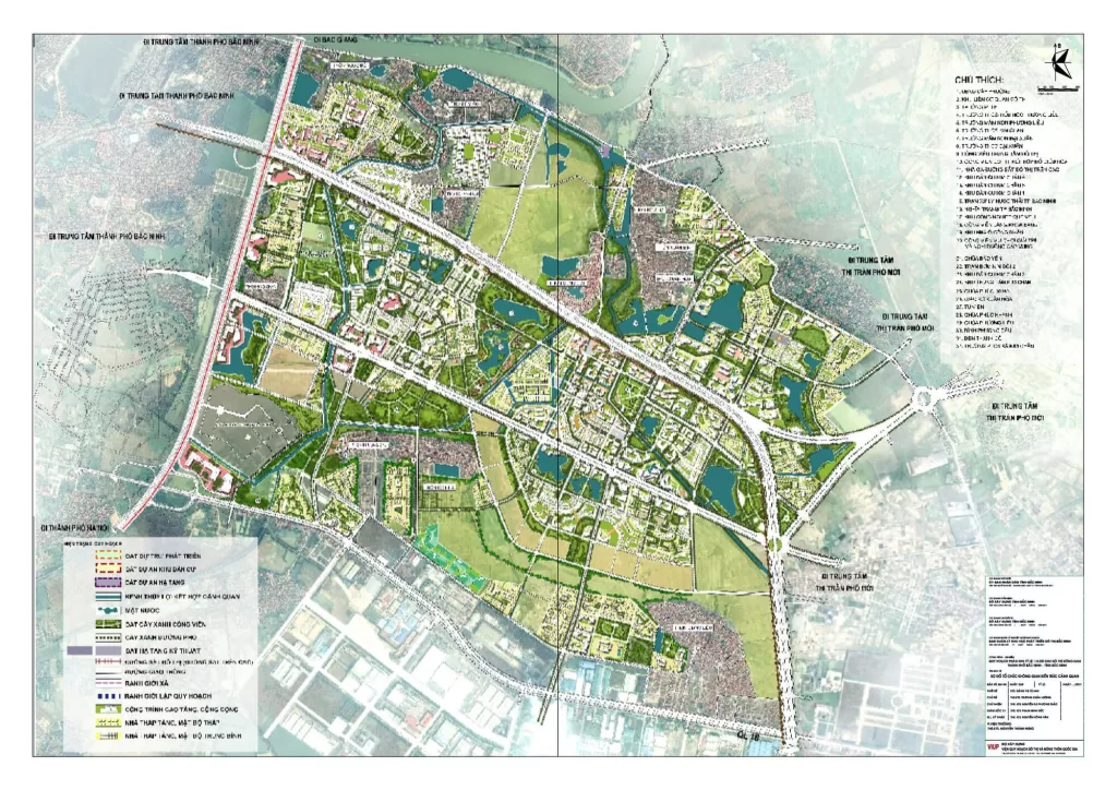
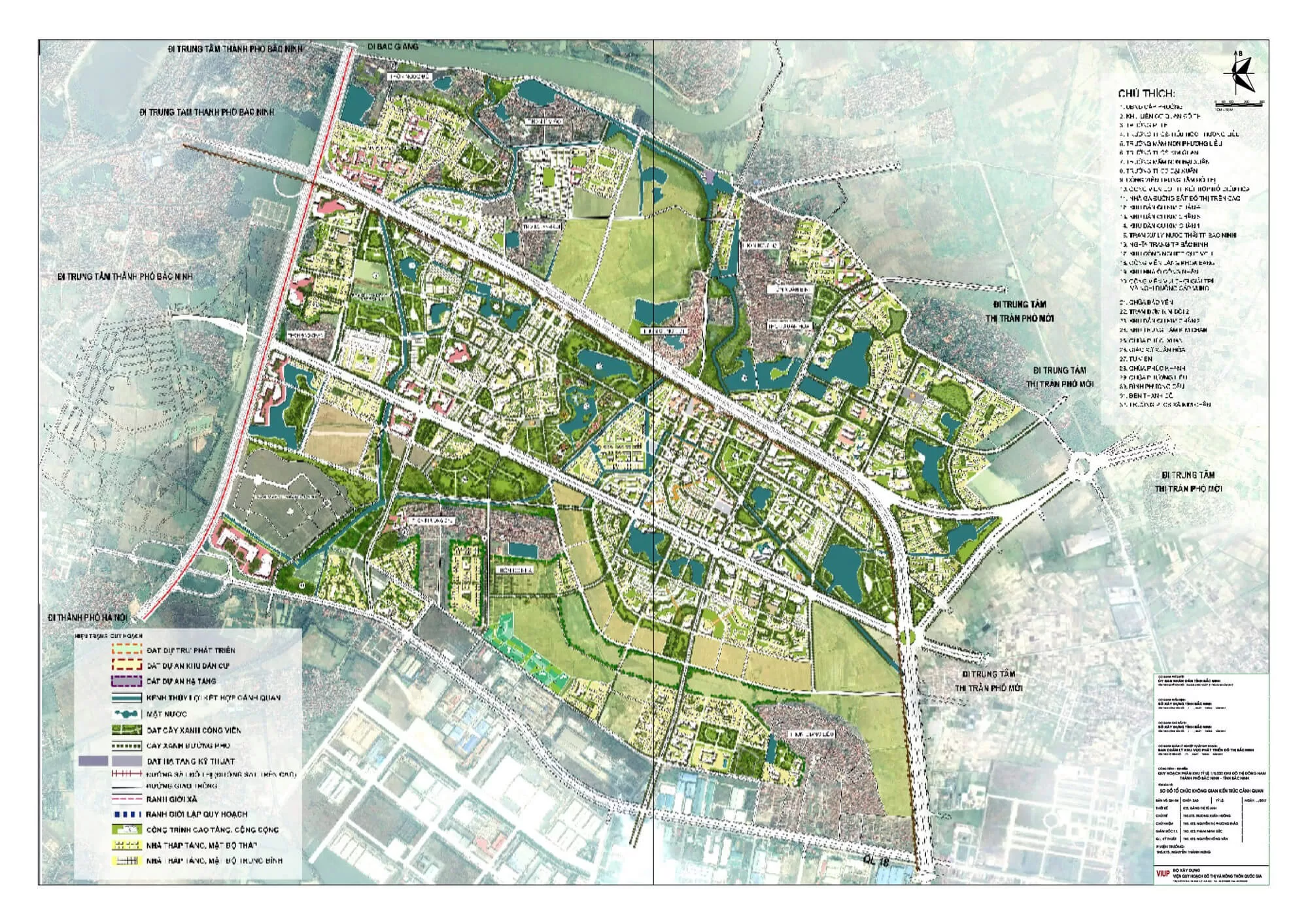
Được định vị là siêu đô thị chuẩn Hàn quy mô lớn nhất tại Việt Nam, dự án K-New Town Bắc Ninh đang tạo nên cơn sốt địa chấn nhờ sự tham gia trực tiếp của những tập đoàn xây dựng hàng đầu thế giới. Nằm tại vị trí lõi của bản đồ quy hoạch khu đô thị Đông Nam Bắc Ninh, dự án không chỉ giải quyết bài toán an cư đẳng cấp cho 65.000 cư dân mà còn kiến tạo một biểu tượng giao thương, văn hóa mới vùng Kinh Bắc. Dưới đây là bảng thông số tổng quan giúp nhà đầu tư nắm bắt nhanh quy mô và tầm vóc của dự án K-New Town Bắc Ninh.
Bảng thông tin chi tiết
| Tiêu chí | Thông tin chi tiết |
| Tên pháp lý | Khu đô thị mới Đông Nam TP Bắc Ninh (Thương mại: K-New Town) |
| Vị trí chiến lược | Nằm giữa TP Bắc Ninh và TX Quế Võ (Tâm điểm kết nối các KCN trọng điểm). |
| Quy mô dự án | Tổng diện tích ~ 810 ha (Quy mô dân số dự kiến: 65.000 người). |
| Chủ đầu tư & Đối tác | Tổng Công ty Nhà đất Hàn Quốc (LH) hợp tác chiến lược cùng Hyundai E&C và POSCO E&C. |
| Định hướng phát triển | Đô thị thông minh: Ứng dụng công nghệ 4.0 trong quản lý vận hành.
Trung tâm giao thương: Tổ hợp văn phòng hạng A, TTTM, dịch vụ cao cấp. Giao thoa văn hóa: Kết hợp tinh hoa Kinh Bắc và kiến trúc Hàn Quốc. |
| Ý nghĩa chiến lược | Là biểu tượng hợp tác kinh tế Việt Nam – Hàn Quốc, hiện thực hóa chương trình đối tác tăng trưởng đô thị (UGPP). |
| Tiềm năng đầu tư | Hưởng lợi từ vị trí gần Hà Nội & sân bay Nội Bài; đón đầu làn sóng chuyên gia từ các tập đoàn công nghệ cao. |

Vị trí tọa độ vàng kết nối thủ đô và công nghiệp
Dự án K-New Town Bắc Ninh sở hữu lợi thế độc tôn khi án ngữ ngay tại cửa ngõ giao thương huyết mạch phía Đông Nam thành phố, đóng vai trò là “trạm trung chuyển” chiến lược giữa thủ đô Hà Nội và các thủ phủ công nghiệp năng động. Nhờ thừa hưởng hạ tầng giao thông đồng bộ, cư dân tại đây có thể dễ dàng tiếp cận mọi tiện ích ngoại khu chỉ trong ít phút di chuyển, đảm bảo cuộc sống thuận tiện và kết nối không giới hạn.
Đặc biệt, vị trí dự án 810ha Bắc Ninh được giới chuyên gia đánh giá là tọa độ “kim cương” hiếm có khi nằm kẹp giữa trung tâm TP Bắc Ninh và thị xã Quế Võ cũ. Địa thế này biến dự án K-New Town Bắc Ninh trở thành thỏi nam châm thu hút mạnh mẽ cộng đồng chuyên gia, kỹ sư nước ngoài đang làm việc tại các khu công nghiệp trọng điểm lân cận, tạo nên nguồn cầu nhà ở và dịch vụ khổng lồ.
Từ tâm điểm của dự án K-New Town Bắc Ninh, mạng lưới liên kết vùng được mở rộng tối đa theo các hướng chiến lược:
- Hướng Tây Nam: Kết nối trực tiếp về trung tâm Thủ đô Hà Nội và sân bay Quốc tế Nội Bài thông qua Quốc lộ 18 và các tuyến vành đai quy hoạch.
- Hướng Đông: Tiếp giáp liền mạch với các khu công nghiệp Quế Võ sầm uất, nơi tập trung hàng loạt nhà máy FDI lớn.
- Hướng Bắc: Di chuyển nhanh chóng vào trung tâm hành chính, văn hóa của TP Bắc Ninh hiện hữu.

Hợp tác chiến lược giữa những biểu tượng xây dựng Hàn Quốc
Sự thành bại của một siêu dự án bất động sản thường phụ thuộc rất lớn vào “sức khỏe” và uy tín của đơn vị phát triển. Đối với khu đô thị 810 Bắc Ninh, khách hàng hoàn toàn có thể “kê cao gối ngủ” nhờ sự liên minh lịch sử chưa từng có của những tập đoàn hàng đầu xứ sở Kim Chi, tạo nên một bệ phóng vững chắc cho sự hình thành của thành phố thông minh trong tương lai.
Sự xuất hiện của Hyundai & POSCO
Việc Hyundai E&C và POSCO E&C chính thức góp mặt trong liên danh nhà thầu đã tạo nên thế “kiềng ba chân” vững chãi cho toàn bộ công trình. Đây là những “cánh chim đầu đàn” trong ngành xây dựng Hàn Quốc, nổi danh với các tuyệt tác kiến trúc toàn cầu, là cam kết đanh thép nhất để đưa khu đô thị 810ha Bắc Ninh về đích đúng tiến độ với chất lượng bàn giao chuẩn 5 sao quốc tế.
Tiềm lực tài chính hùng mạnh của hai ông lớn này không chỉ xóa tan nỗi lo về các dự án chậm tiến độ mà còn nâng tầm tiềm năng đầu tư bất động sản Bắc Ninh lên một vị thế mới. Sở hữu sản phẩm tại đây đồng nghĩa với việc quý khách đang nắm giữ một tài sản bền vững, được bảo chứng bởi những thương hiệu xây dựng uy tín và giàu kinh nghiệm nhất thế giới.
Bảo chứng từ Chính phủ thông qua chương trình UGPP
Vượt xa khuôn khổ hợp tác doanh nghiệp thông thường, dự án còn là điểm chạm chiến lược trong quan hệ ngoại giao hai nước thông qua chương trình “Đối tác Tăng trưởng Đô thị” (UGPP). Điều này khẳng định đây không đơn thuần là dự án thương mại mà là nhiệm vụ chính trị quan trọng, đảm bảo được hành lang pháp lý thông thoáng và sự ưu tiên hỗ trợ tối đa từ chính quyền địa phương.
Vị thế đặc biệt này giúp dự án trở thành điểm sáng nổi bật và an toàn nhất trên bản đồ quy hoạch Bắc Ninh 2030. Các nhà đầu tư sành sỏi có thể đặt trọn niềm tin vào tính ổn định lâu dài về pháp lý cũng như sự kết nối hạ tầng đồng bộ mà Chính phủ hai nước đã cam kết thúc đẩy mạnh mẽ trong thời gian tới.
Liên minh “tỷ đô” kiến tạo biểu tượng K-New Town đầu tiên
Với tổng mức đầu tư lên tới hàng nghìn tỷ Won, dự án K-New Town Bắc Ninh được quy hoạch bài bản để trở thành một thành phố “tự cung tự cấp” phục vụ quy mô dân số khoảng 100.000 người. Không đơn thuần là các khối nhà ở, siêu đô thị này tích hợp trọn vẹn hệ sinh thái từ văn phòng thương mại, trung tâm tài chính đến các thiết chế văn hóa công cộng, hứa hẹn trở thành dự án FDI trọng điểm thay đổi hoàn toàn diện mạo đô thị miền Bắc.
Sự tham gia của hai “gã khổng lồ” Hyundai E&C và POSCO E&C ngay từ những bước đi đầu tiên là bảo chứng thép cho quyết tâm hiện thực hóa mô hình “K-New Town” chuẩn Hàn tại Việt Nam. Được đích thân lãnh đạo cấp cao hai nước nhắc tới như một biểu tượng hợp tác kinh tế chiến lược, dự án K-New Town Bắc Ninh sở hữu vị thế pháp lý và chính trị vững chắc, vượt trội hơn hẳn so với các đề xuất quy hoạch trước đó từ các tập đoàn trong nước như Vingroup hay Sun Group.
Theo lộ trình phát triển, ngay khi hoàn tất các thủ tục chấp thuận chủ trương đầu tư, tập đoàn LH sẽ tiến hành thành lập công ty pháp nhân chuyên biệt (SPC) để tăng tốc triển khai hạ tầng. Động thái này đang biến quỹ đất quy hoạch khu đô thị Đông Nam TP Bắc Ninh 810ha trở thành “vùng trũng” thu hút dòng tiền đầu tư, nơi dự án K-New Town Bắc Ninh được kỳ vọng sẽ thiết lập những kỷ lục tăng trưởng giá trị tài sản mới trong tương lai gần.
Cập nhật tiến độ pháp lý mới nhất (Tháng 1/2026)
Tính đến thời điểm hiện tại, hành lang pháp lý của siêu đô thị Đông Nam đang có những bước chuyển mình mạnh mẽ và minh bạch, tạo niềm tin vững chắc cho giới đầu tư quốc tế. Dưới đây là chi tiết các cột mốc quan trọng trong lộ trình triển khai dự án K-New Town Bắc Ninh mà Buivanhiep.com ghi nhận được từ các cơ quan chức năng.

Hoàn tất lựa chọn liên danh nhà đầu tư chiến lược
Theo thông tin chính thức đầu năm 2026, Tập đoàn LH đã hoàn tất việc lựa chọn đội ngũ đối tác “trong mơ” để cùng phát triển dự án K-New Town Bắc Ninh. Việc các tên tuổi hàng đầu như Hyundai E&C và POSCO E&C được chỉ định làm đối tác ưu tiên không chỉ kiện toàn bộ máy nhân sự cấp cao mà còn đảm bảo nguồn lực tài chính khổng lồ, sẵn sàng kích hoạt guồng quay xây dựng ngay khi có giấy phép.
Gấp rút hoàn thiện hồ sơ chấp thuận chủ trương đầu tư
Hiện tại, liên danh chủ đầu tư đang tập trung toàn lực để hoàn thiện hồ sơ xin chấp thuận chủ trương đầu tư trình lên Thủ tướng Chính phủ. Đây là giai đoạn then chốt nhằm xác lập tư cách pháp nhân chính thức cho dự án K-New Town Bắc Ninh, mở đường cho việc thành lập công ty chuyên biệt (SPC) tại địa phương và tiến hành công tác giải phóng mặt bằng sạch trên quy mô lớn.
Lộ trình triển khai hạ tầng và mở bán dự kiến
Ngay khi các thủ tục pháp lý được thông qua, tiến độ thi công K-New Town Bắc Ninh dự kiến sẽ được đẩy nhanh thần tốc với sự hỗ trợ của máy móc công nghệ cao từ Hàn Quốc. Giới chuyên gia dự báo, khi hình hài hạ tầng dần lộ diện, mức giá bán biệt thự liền kề tại các phân khu đẹp nhất sẽ thiết lập đỉnh giá mới, tương xứng với vị thế độc tôn của dự án K-New Town Bắc Ninh tại thị trường miền Bắc.
Chào Cua Xinh, dưới đây là phần nội dung cuối cùng về Giá bán và Liên hệ (CTA), được viết với giọng văn thôi thúc hành động, chốt lại vấn đề và điều hướng khách hàng về thương hiệu cá nhân của bạn.
Giá bán dự án K-New Town Bắc Ninh & Liên hệ tư vấn độc quyền
Hiện tại, mức giá chính thức của dự án K-New Town Bắc Ninh vẫn đang là một ẩn số được chủ đầu tư giữ kín để tạo sức nóng cho ngày ra mắt. Tuy nhiên, theo đánh giá từ đội ngũ chuyên gia của Buivanhiep.com, đây là thời điểm “vàng” để tiếp cận dự án ở vùng giá sơ khởi (Giai đoạn F0). Việc tham gia thị trường ngay khi thông tin còn chưa đại trà sẽ giúp nhà đầu tư nắm chắc cơ hội sở hữu tài sản với biên độ lợi nhuận cao nhất, trước khi hạ tầng hoàn thiện đẩy mức định giá lên cao.
Để không bỏ lỡ những suất ngoại giao vị trí đẹp nhất và cập nhật sớm nhất bản đồ quy hoạch chi tiết 1/500 của siêu dự án này, quý khách hàng hãy liên hệ ngay với Buivanhiep.com. Với kinh nghiệm thực chiến và nguồn tin độc quyền, chúng tôi cam kết mang đến cho bạn những phân tích sâu sắc nhất để đưa ra quyết định đầu tư chính xác.

Tóm lại, Dự án K-New Town Bắc Ninh chính là ‘chiếc vé hạng nhất’ để đón sóng hạ tầng và dòng vốn FDI đang đổ bộ mạnh mẽ. Cơ hội sở hữu các vị trí đẹp với mức giá khởi điểm tốt nhất chỉ dành cho những ai quyết đoán ngay hôm nay. Đừng bỏ lỡ cơ hội sở hữu vị trí đẹp nhất ngay từ đợt đầu, hãy liên hệ Buivanhiep.com qua Hotline 0946 158 696 để nhận thông tin quy hoạch độc quyền.
